<>
<>
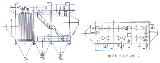
1、XKD、XWD系列電除塵器的參數、結構和外型尺寸見附圖。
2、型號表示意義:

例1:(XKD200×3/2)
板臥式框架結構的電除塵器,其流通面積200m2三個電場雙室結構。
同極間距300mm/400mm
|
電場風速(M/s)
|
0.9-1.2
|
|
除塵器承受負壓(Pa)
|
-600~0 |
|
氣體允許溫度(℃)
|
≤300
|
|
設計效率(%)
|
≥99
|
|
壓力損失(Pa)
|
≤300
|
|
漏風率(%)
|
≤5
|
|
電場數/室數
|
3電場/單室~3電場/雙室
|
|
電場有效長度(M)
|
C型板、波形板
|
|
陽極振打形式
|
撓臂錘側部振打
|
|
陽極振打形式
|
芒刺線、魚骨線、鋸齒線
|
|
陰極線形式
|
撓臂錘振打
|
|
陰極振打形式
|
|
|
高壓電源臺數
|
3~6
|
|
高壓電源參數輸出電流(A)
|
0.1~1.6/0.1~1.3
|
|
高壓電源參數輸出電壓(V)
|
60/70
|

| 項目/型號 | XKD(同極間距300mm) XKD(同極間距400mm) | ||||||||||||
| 110×3 | 120×3 | 130×3 | 140×3 | 150×3 | 160×3 | 170×3 | 180×3 | 190×3 | 200×3 | 220×3 | 240×3 | 260×3 | |
| 有效斷面積(M2) |
110.6/ 110.6 |
120.2/ 120.2 |
131.4/ 130.2 |
141.8/ 141.8 |
150.2/ 150.2 |
159.6/ 160.7 |
169.0/ 170.2 |
181.3/ 190.4 |
190.4/ 190.4 |
200.0/ 200.0 |
221.2/ 221.2 |
240.4/ 240.4 |
262.9/ 260.4 |
| 處理風量×104(M3/h) |
39.6~ 47.5 |
43.2~ 51.8
|
46.8~ 56.1 |
50.4~ 60.4 |
54~ 64.8 |
57.6~ 69.1 |
61.2~ 73.4 |
64.8~ 77.7 |
68.4~ 82 |
72~ 86.4 |
79.2~ 95 |
86.4~103.6 |
93.6~
|
| 陽極板總有效面積(M2) |
8847 |
9615 |
10516 |
11347 |
12019 |
12765 |
13521 |
14504 |
15237 |
16005 |
17694 |
19230 |
21033 |
| 設備外形尺寸長×寬×高(M) |
24.9 ×12.43 ×20.35 |
24.9 ×12.43 ×21.35 |
24.9 ×13.363 ×21.25 |
24.9 ×14.9 ×20.65 |
24.9 ×14.9 ×21.35 |
24.9 ×16.5 ×21.45
|
24.9 ×16.5 ×22.15 |
23.9 ×22.5 ×19.05 |
23.9 ×24.1 ×18.55 |
23.9 ×24.1 ×19.45 |
24.9 ×24.15 ×20.55 |
24.9 ×24.15 ×21.55 |
24.9 ×25.75 ×21.55 |
